︎
/
. PROJETS
/. CV
02.
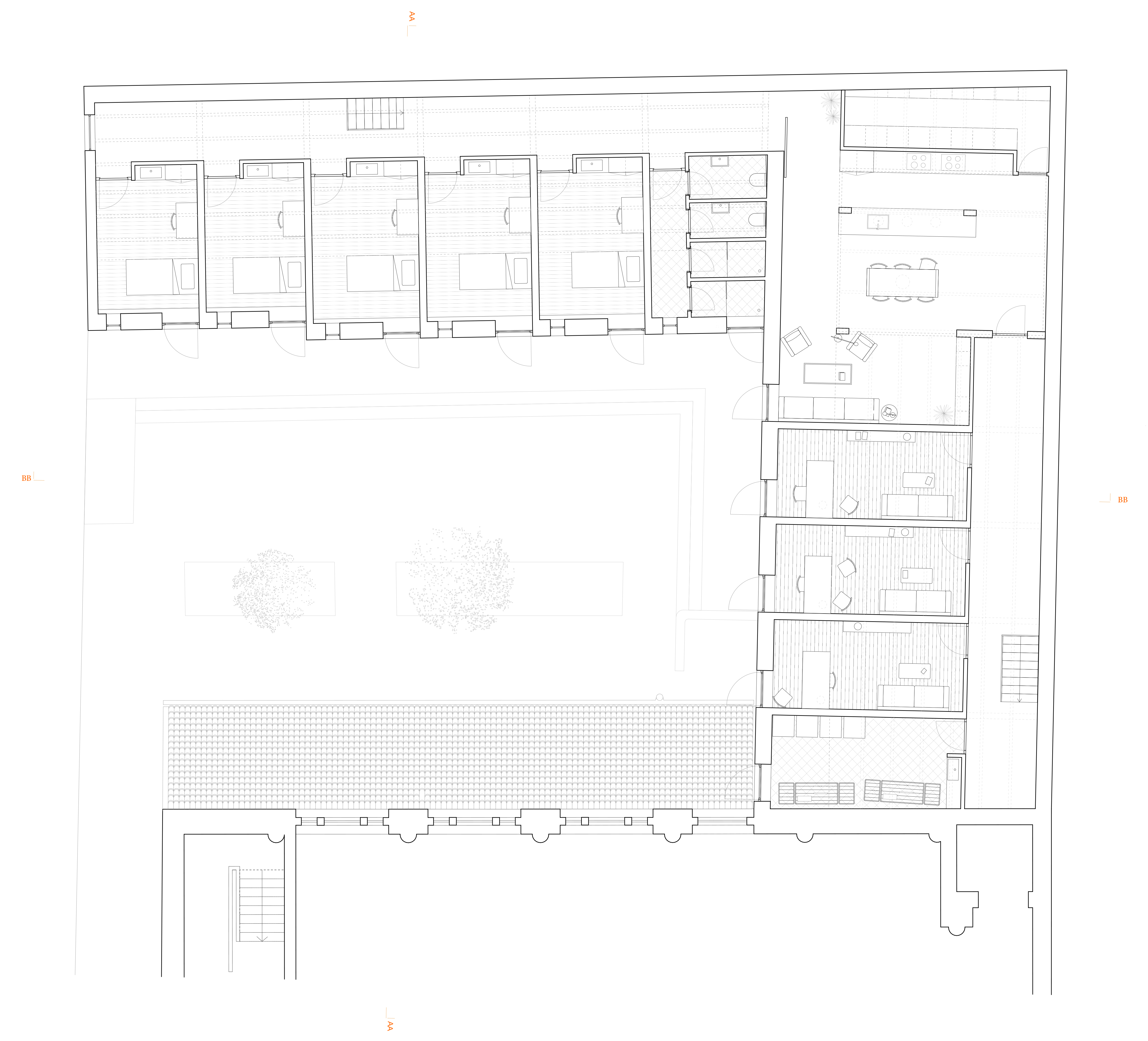
Projet
Lieu
Date
Surface
Crédit photo
House of the Mind
Copenhague, DK
2018
500 m
2
Bertrand Van Dorp