15.
Projet
Programme
Lieu
Date 
Surface
Client
Crédits photos
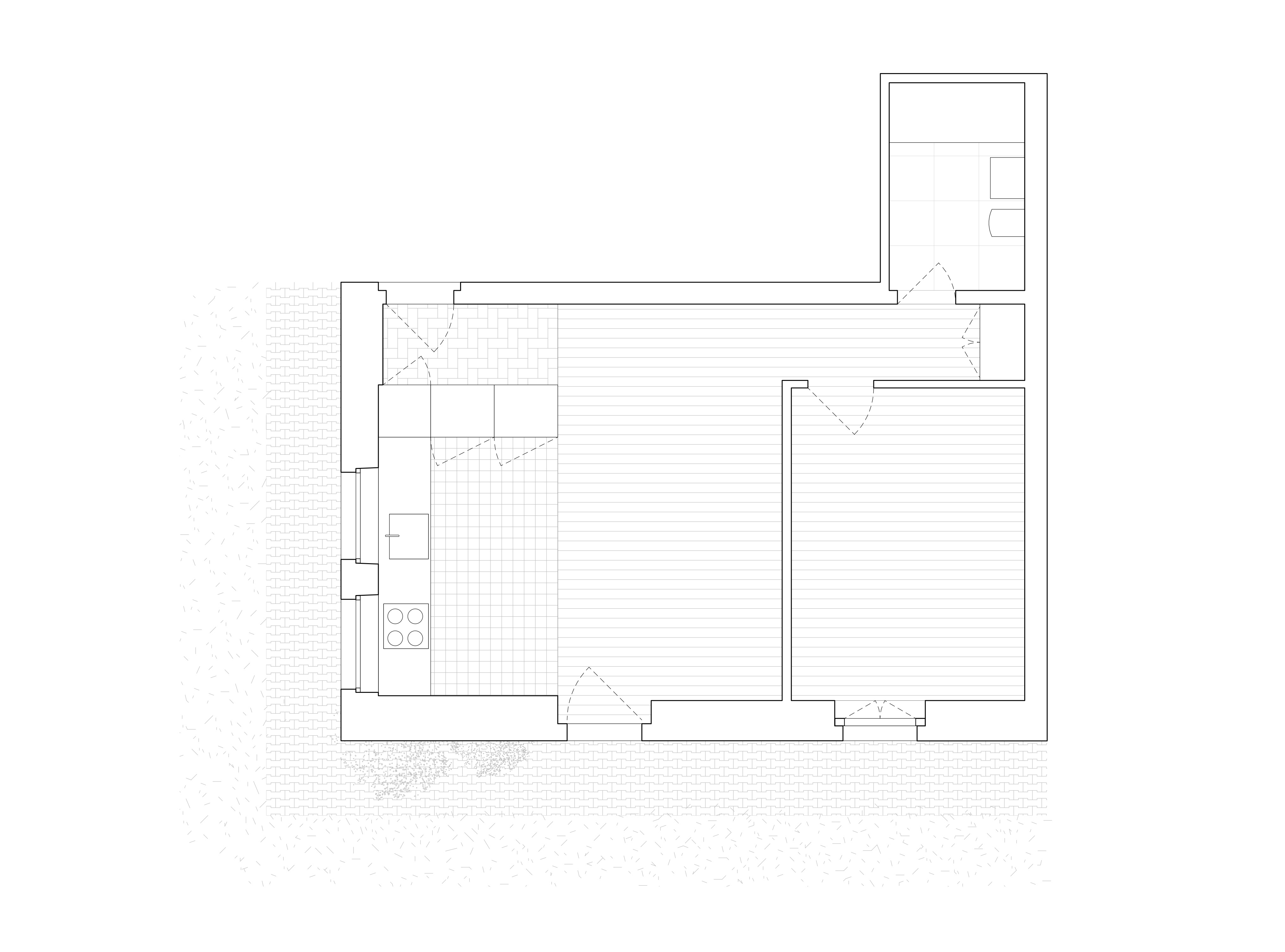
SAB
Rénovation d’appartement
Route de Sézegnin, Genève
2024
80 m2
Privé
Sven Högger











